Finca bei Sineu
Anterior
Finca cerca de Sineu
#52604100-2 

Finca nueva con viña cerca de Porreres

  • Exclusiva finca nueva con piscina y viñas propias en Porreres. - 3
  • Exclusiva finca nueva con piscina y viñas propias en Porreres. - 2
  • Exclusiva finca nueva con piscina y viñas propias en Porreres. - 1
  • Exclusiva finca nueva con piscina y viñas propias en Porreres. - 4
  • Exclusiva finca nueva con piscina y viñas propias en Porreres. - 5
  • Exclusiva finca nueva con piscina y viñas propias en Porreres. - 6
  • Exclusiva finca nueva con piscina y viñas propias en Porreres. - 7
  • Exclusiva finca nueva con piscina y viñas propias en Porreres. - 8

Descripción del inmueble

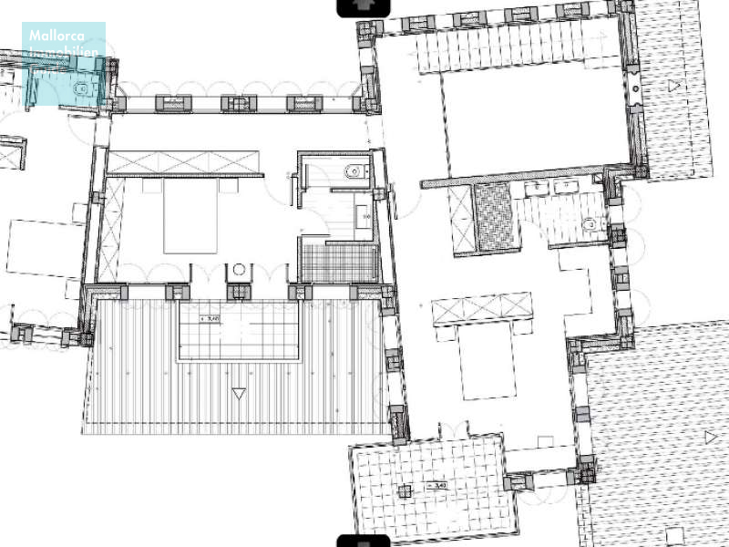
Finca con proyecto en venta en los alrededores de Porreres! La construcción puede comenzar de inmediato. El solar esta rodeada de las características colinas de la zona y mide unos 15.000 m². Se encuentra en una ubicación de primera cerca del pueblo. El proyecto prevé dos plantas con una superficie construida de aproximadamente 520 m² y una superficie habitable de aproximadamente 350 m². La casa en venta en Mallorca tendrá 4 dormitorios y 4 baños en-suite. En la planta baja habrá un dormitorio con baño en-suite, un salon muy amplio, comedor con cocina abierta, despensa, varios cuartos secundarios y un aseo. En la primera planta habrá 3 dormitorios mas con sus baños en-suite. El equipo exclusivo de la casa incluye calefacción por suelo radiante con bomba de calor, instalación climática preparada, chimenea, paredes de piedra natural, baldosas de mármol, armarios empotrados, piscina infinita (12 x 5 m), garaje, sótano de aproximadamente 40 m², fuente propia, conexión al red público de electricidad.

¿Le gusta este inmueble?

Envienos su solicitud y le contestamos a la mayor brevedad


Finca bei Sineu
Anterior
Finca cerca de Sineu
Top