Baugrundstück mit Lizenz bei Felanitx
Anterior
Parcela edificable con licencia cerca de Felanitx
Baugrundstück mit Lizenz in Can Picafort
Siguiente
Solar edificable con licencia en Ca´n Picafort
#23039-17 

Cala Romantica - parcela con vistas del mar y licencia

  • Solar en venta Mallorca: mejor ubicación, vistas al mar 1
  • Solar en venta Mallorca: mejor ubicación, vistas al mar 2
  • Solar en venta Mallorca: mejor ubicación, vistas al mar 3
  • Solar en venta Mallorca: mejor ubicación, vistas al mar 4
  • Solar en venta Mallorca: mejor ubicación, vistas al mar 5
  • Solar en venta Mallorca: mejor ubicación, vistas al mar 6
  • Solar en venta Mallorca: mejor ubicación, vistas al mar 7
  • Solar en venta Mallorca: mejor ubicación, vistas al mar 8

Descripción del inmueble

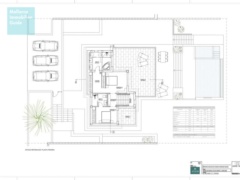
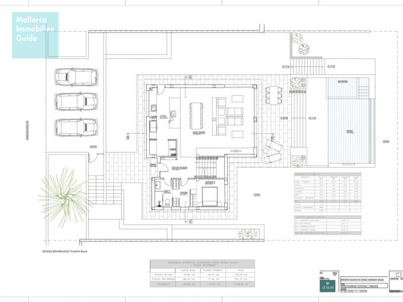
Parcela con licencia de construcción en venta en Cala Romantica. La parcela de unos 993 m² tiene vistas espectaculares e ininterrumpida de toda la bahía y del mar. Se encuentra en una zona elevada del núcleo. El proyecto aprobado tiene planeado un total de 256 m² construidos y aproximadamente 200 m² de espacio habitable. Incluye 3 dormitorios con vestidores y baños en suite. En la planta baja se prevé un amplio salón/comedor con cocina abierta e isla de cocina, así como un dormitorio con baño en suite y vestidor. También es prevista una terraza panorámica con una piscina infinita con vistas de la bahía y el mar. En la planta superior habrá dos dormitorios con baños en suite y vestidro. El dormitorio principal tendrá un baño de lujo con bañera exenta y su terraza privada con vistas al mar. La terraza de la azotea tiene vistas panorámica impresionantes y posibilidades de uso muy distintos, como crear un chill-out o una área de barbacoa/cocina exterior con una vista maravillosa. La parcela se vende con la estructura existente y el proyecto con licencia de obra en vigor, así que las obras pueden continuar de forma inmediata.

¿Le gusta este inmueble?

Envienos su solicitud y le contestamos a la mayor brevedad


Baugrundstück mit Lizenz bei Felanitx
Anterior
Parcela edificable con licencia cerca de Felanitx
Baugrundstück mit Lizenz in Can Picafort
Siguiente
Solar edificable con licencia en Ca´n Picafort
Top